628 Pepperville Crescent, Ottawa, Ontario K2M 0E8 (29649863)

628 Pepperville Crescent Ottawa, Ontario K2M 0E8

2 Bedroom 3 Bathroom 1,100 - 1,500 ft2
Fireplace Central Air Conditioning Forced Air

$649,900

Welcome to 628 Pepperville Crescent, a stylish and well-maintained home offering a functional layout in a sought-after Ottawa community. This 2-bedroom + loft, 2.5-bathroom property is perfect for professionals, small families, or investors seeking comfort and versatility. The main level features an open-concept design filled with natural light, seamlessly connecting the living, dining, and kitchen areas-ideal for both everyday living and entertaining. The kitchen offers ample cabinetry and workspace, overlooking the bright living area. Upstairs, you'll find two spacious bedrooms, including a generous primary retreat complete with a private ensuite bathroom. The additional loft provides the perfect flex space for a home office, media area, or easily converted third bedroom. A second full bathroom and convenient upper-level laundry enhance everyday functionality. The fully finished lower level features a walk-out basement, providing additional living space ideal for a recreation room, home gym, or guest area, along with a powder room for added convenience and direct access to the outdoors. Located close to parks, schools, shopping, and transit, this home combines comfort, convenience, and lifestyle in one exceptional package. (id:61072)

Property Details

MLS® Number X13038200
Property Type Single Family
Community Name 9010 - Kanata - Emerald Meadows/Trailwest
Equipment Type Water Heater
Parking Space Total 3
Rental Equipment Type Water Heater

Building

Bathroom Total 3
Bedrooms Above Ground 2
Bedrooms Total 2
Amenities Fireplace(s)
Appliances Dishwasher, Dryer, Stove, Washer, Refrigerator
Basement Development Finished
Basement Features Walk Out
Basement Type N/a (finished)
Construction Style Attachment Attached
Cooling Type Central Air Conditioning
Exterior Finish Brick, Vinyl Siding
Fireplace Present Yes
Foundation Type Concrete
Half Bath Total 1
Heating Fuel Natural Gas
Heating Type Forced Air
Stories Total 2
Size Interior 1,100 - 1,500 Ft2
Type Row / Townhouse
Utility Water Municipal Water

Parking

Attached Garage
Garage

Land

Acreage No
Sewer Sanitary Sewer
Size Depth 98 Ft ,6 In
Size Frontage 19 Ft ,8 In
Size Irregular 19.7 X 98.5 Ft
Size Total Text 19.7 X 98.5 Ft

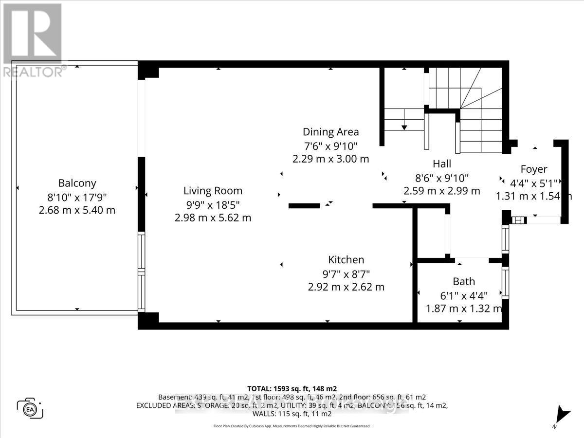
Rooms

Level Type Dimensions
Second Level Primary Bedroom 3.95 m x 3.96 m
Second Level Other 1.88 m x 1.56 m
Second Level Bathroom 3.19 m x 1.55 m
Second Level Family Room 4.74 m x 3.96 m
Second Level Bedroom 4.06 m x 3.29 m
Basement Recreational, Games Room 3.27 m x 5.61 m
Basement Utility Room 1.85 m x 1.96 m
Basement Bathroom 2.34 m x 2.55 m
Basement Laundry Room 1.89 m x 2.55 m
Basement Other 1.21 m x 1.54 m
Main Level Living Room 2.98 m x 5.62 m
Main Level Dining Room 2.29 m x 3 m
Main Level Kitchen 2.92 m x 2.62 m
Main Level Bathroom 1.87 m x 1.32 m
Main Level Foyer 1.31 m x 1.54 m

https://www.realtor.ca/real-estate/29649863/628-pepperville-crescent-ottawa-9010-kanata-emerald-meadowstrailwest

Contact Us

Contact us for more information

Generating Captcha

Tarek El Attar
Salesperson

(613) 733-9494

Exp Realty
255 Michael Cowpland Drive
Ottawa, Ontario K2M 0M5

(613) 733-9494
(647) 849-3180

Diane Tuplin
Salesperson

(613) 250-8931

Exp Realty
255 Michael Cowpland Drive
Ottawa, Ontario K2M 0M5

(613) 733-9494
(647) 849-3180

Steve Alexopoulos
Broker

(613) 733-9494
www.facebook.com/MetroCityPropertyGroup/

Exp Realty
255 Michael Cowpland Drive
Ottawa, Ontario K2M 0M5

(613) 733-9494
(647) 849-3180

Your Favourites

 

No Favourites Found

 

Join Our Private Members Mailing List

Lorem ipsum dolor sit amet, consectetur adipiscing elit. Ut elit tellus, luctus nec ullamcorper mattis, pulvinar dapibus leo.

Compare listings

Compare