2278 Rembrandt Rd —
Ottawa | $549,900
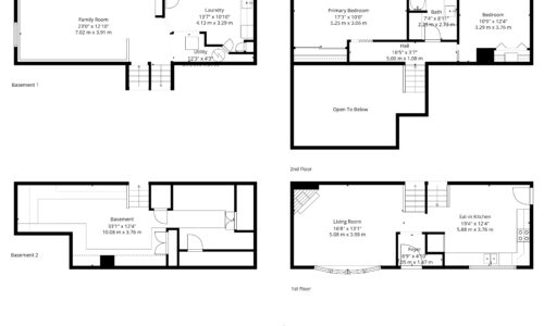
Welcome to 2278 Rembrandt Rd, a charming and well-maintained backsplit home offering 2 bedrooms and set on a generous 53.99′ x 100′ lot with no rear neighbours in the highly sought-after, family-friendly community of Whitehaven in Ottawa’s west end. The main floor is filled with character, natural light, and gleaming hardwood flooring throughout. The spacious, country-style eat-in kitchen provides abundant cabinetry and countertop space, perfect for everyday living and effortless meal prep. The inviting living room features sun-filled windows, hardwood flooring, and a cozy gas fireplace to warm up cooler evenings. Step outside to the beautiful, expansive backyard, complete with a storage shed and gazebo, an ideal space for gardening, play, or simply relaxing in the privacy of having no rear neighbours. The generous primary bedroom is brightened by large windows and offers hardwood flooring, a spacious closet, and easy access to the fully renovated family bath. The additional bedroom is equally well-sized. The finished lower level extends your living space with a large family room featuring custom built-in cabinetry, a spacious laundry room, utility room, and ample storage. This charming bungalow offers comfort, functionality, and a wonderful location. Whitehaven is one of Ottawa’s most established west-end communities, known for its quiet tree-lined streets, spacious lots, and strong sense of pride among long-time residents. Tucked between the Ottawa River and major urban conveniences, the neighbourhood offers an ideal balance of tranquility and accessibility. Families appreciate the nearby parks, excellent schools, and easy access to NCC pathways, while commuters benefit from quick connections to Carling Avenue, Richmond Road, and Highway 417. With its mature landscape and welcoming atmosphere, Whitehaven delivers a rare blend of comfort, convenience, and enduring Community charm.
Gallery
Property Details
- Style:Bungalow
- Year Built:1959
- Lot Size:53.99' x 100'
- Bedrooms:2
- Bathrooms:1
- Taxes:$4,632.02/2025

